スタッフブログ
見せたくないもの
2022.10.17
住まいづくり
住まいづくり
この写真の中に、ある秘密が隠されています。
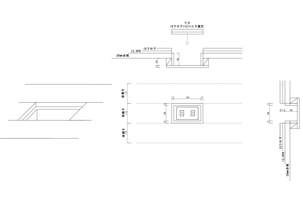
コンセントを見えないように隠して欲しいとのお客様の要望にて、製作しました。
無垢材のフロアの一部を切り抜いて、コンセントを隠すための箱を製作。
こんな感じのイメージを大工さん・電気屋さんへお伝えし、製作していただきました。

あとは、床材にコンセントケーブルが通る穴を開けて、完成の予定です。
どのお宅にも必ずついているコンセント。
ただ、コンセントを見せたくない場所もありますし、普段あまり使わないコンセントもありますよね。
たかが、コンセント。されどコンセント。
小さなものですが、大きくデザインが変わることもあります。
今回の物件は11/19(土)20(日)に長岡市にて見学会開催予定です。
見学会の際にどこにあるか、ぜひ探してみて下さい。
長岡本社 工務 和田















