スタッフS 家を建てる Vol.7【竣工編】
住まいづくり
令和元年6月、ついに我が家が完成しました!
「よし、家を建てよう!」と思い立ち、土地探しを始めてほぼ一年。
高田スタッフということもあり、「はたして家を建てられるだろうか?」というところからの
スタートとしては、なかなかのハイペースでした。
逆に一年前は今の状況など全く想像できていませんでした。
でもちょっとしたきっかけ(と前向きな勇気)で、環境は早く大きく変化していくものなのだと実感しております。
そして先日、6月15日・16日の二日間、見学会を開催することができました。
雨風強いあいにくの空模様ではありましたが、多くのお客様にご来場いただけました。
施主としても感謝の気持ちでいっぱいです。ありがとうございました。

今回は小さなS邸に施した、小さなディティールを紹介してみたいと思います。
【階段手すりのデザイン】
リビングと一体となった階段室。その手すりは、ぱっと見はミニマムで宙に浮いたような角形のデザインですが、その裏側に握りやすくするための形を設計してみました。木工職人さんに加工してもらった栂材の手すりは素朴で見た目美しく、使っていて心地よいデザインにできました。
【小さい玄関の心地よい機能性】
必要最小限なサイズにまとめたとはいえ、玄関はヒトのあらゆる動作を伴う空間でもあります。コンパクトな空間でありながら将来にわたっても靴の脱ぎ履きがしやすく、且つ普段はスペースを圧迫しない(そして目立たない)収納椅子を取り付けてみました。
その横には手すりを兼ねながら、あまり機能性を主張しない円柱を配置。
デザインのようでいて使いやすい、心地よいカタチに出来ました。
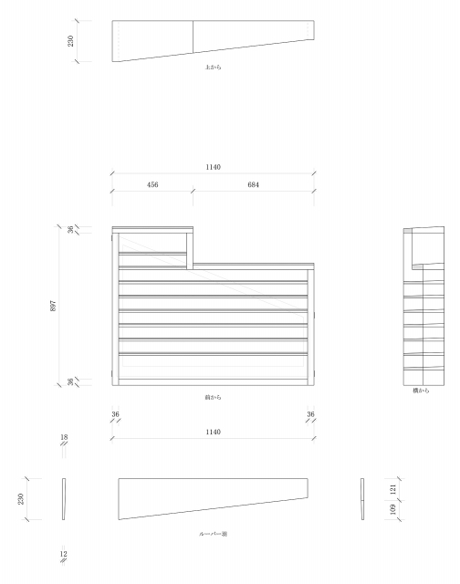
【季節の太陽方位と日照をデザインした外部ルーバー】
S邸勾配天井の南西には、リビング/ダイニングの採光目的として台形サッシを設置しました。
効果的に空間を明るくしてくれるこのハイサイドライトはもろ刃の剣でもありまして、夏場の直射日光は不必要に室内の気温を上昇させてしまいます。
明るさを取り入れるためには必ずしも直射日光は必要ではありません。
4月〜9月の太陽が高高度な昼間、低高度な夕方 それぞれの直射日光を遮りつつ、冬場は多くの時間帯で室内に陽が入る羽の形で、外部ルーバーを設計してみました。方位によって大きく羽の形を変えてあります。
木族の会(協力業者の会)の職人さんによる素晴らしい技術によって、精巧な日射デザインを楽しむことができました。
次回はいよいよ引っ越しです。
S邸の家づくりは第2章に入ります。新生活へ向けた諸々の準備や、高田の住まいでの実際、工夫などお伝えしていきたいと思います。
最後は2階寝室の掃き出し窓から眺めるリビングレイアウトの様子です。
友人が新築祝いでプレゼントしてくれたNゲージを走らせてみました。
新潟営業所 積算 佐々木


















